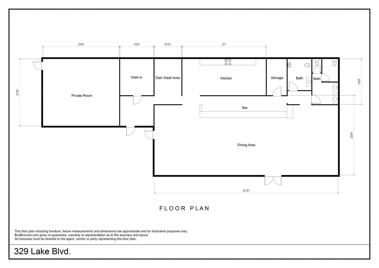
Description
Make your dreams of owning your own restaurant or bar a reality! Currently occupied by Karma's House of Spirits, operated by the building owner for limited hours. Real estate, including a 15' x 4' hood and 10' x 12' walk-in cooler, is available for sale for $975,000. Easy upkeep, as major systems were recently replaced during the 2019-2020 Full Renovation - only 2 block walls remain from original structure! Business entity, Type 48 and 58 Liquor License, and FF&E are available for purchase separately.
-
0BEDS
-
0.55ACRES
-
0BATHS
-
01/2 BATHS
-
3,334SQFT
-
$292$/SQFT
School Ratings & Info
Description
Make your dreams of owning your own restaurant or bar a reality! Currently occupied by Karma's House of Spirits, operated by the building owner for limited hours. Real estate, including a 15' x 4' hood and 10' x 12' walk-in cooler, is available for sale for $975,000. Easy upkeep, as major systems were recently replaced during the 2019-2020 Full Renovation - only 2 block walls remain from original structure! Business entity, Type 48 and 58 Liquor License, and FF&E are available for purchase separately.
IDX information © 2026 Shasta Association of Realtors MLS. Information provided is for consumers' personal, non-commercial use and may not be used for any purpose other than to identify prospective properties consumers may be interested in purchasing. All data, including all measurements and calculations of area, is obtained from various sources and has not been, and will not be, verified by broker or MLS. All information should be independently reviewed and verified for accuracy. Properties may or may not be listed by the office/agent presenting the information. Data last updated: 2026-02-14T17:58:14.683.
Licensed in the State of California.
